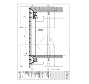
ALUM GLAZING FAÇADE (CURTAIN WALL )
A curtain wall system is an outer covering of a building in which the outer walls are non-structural, utilized to keep the weather out and the occupants in. Since the curtain wall is non-structural, it can be made of lightweight materials, thereby reducing construction costs. When glass is used as the curtain wall, an advantage is that natural light can penetrate deeper within the building. The curtain wall façade does not carry any structural load from the building other than its own dead load weight. The wall transfers lateral wind loads that are incident upon it to the main building structure through connections at floors or columns of the building. A curtain wall is designed to resist air and water infiltration, absorb sway induced by wind and seismic forces acting on the building, withstand wind loads, and support its own dead load weight forces.
CAIRO CONTACT
- 38 Al-Esraa Zone from Salah Eldin St, behind Amr Helmy Designy Building, Ring Road - El-MaadiCairo
- info@menacountry.com
- tec@menacountry.com
- +02 2729 66 25 / 010 6668 4084
ALEXANDRIA CONTACT
-
7 Ebn Marzook St., Saba Basha,
El Raml 1
Alexandria - info@menacountry.com
- tec@menacountry.com
- +203 5834441 / +2 0106 77 66660
FACTORY CONTACT
-
Petrochemical Rood ,
Merghem
Alexandria - info@menacountry.com
- tec@menacountry.com
- +203 34 22 308 / +2 0106 77 66660
Stay tuned
for the grand opening
of our
new branch in
Saudi Arabia!

























